[2025] FILOMENA

Aménagement d’un café et glacier aux Pâquis (GE) , Suisse.


ClientPublique

LocationGenève

Status – Construit

Date – 2020/2021

Images – Think Utopia


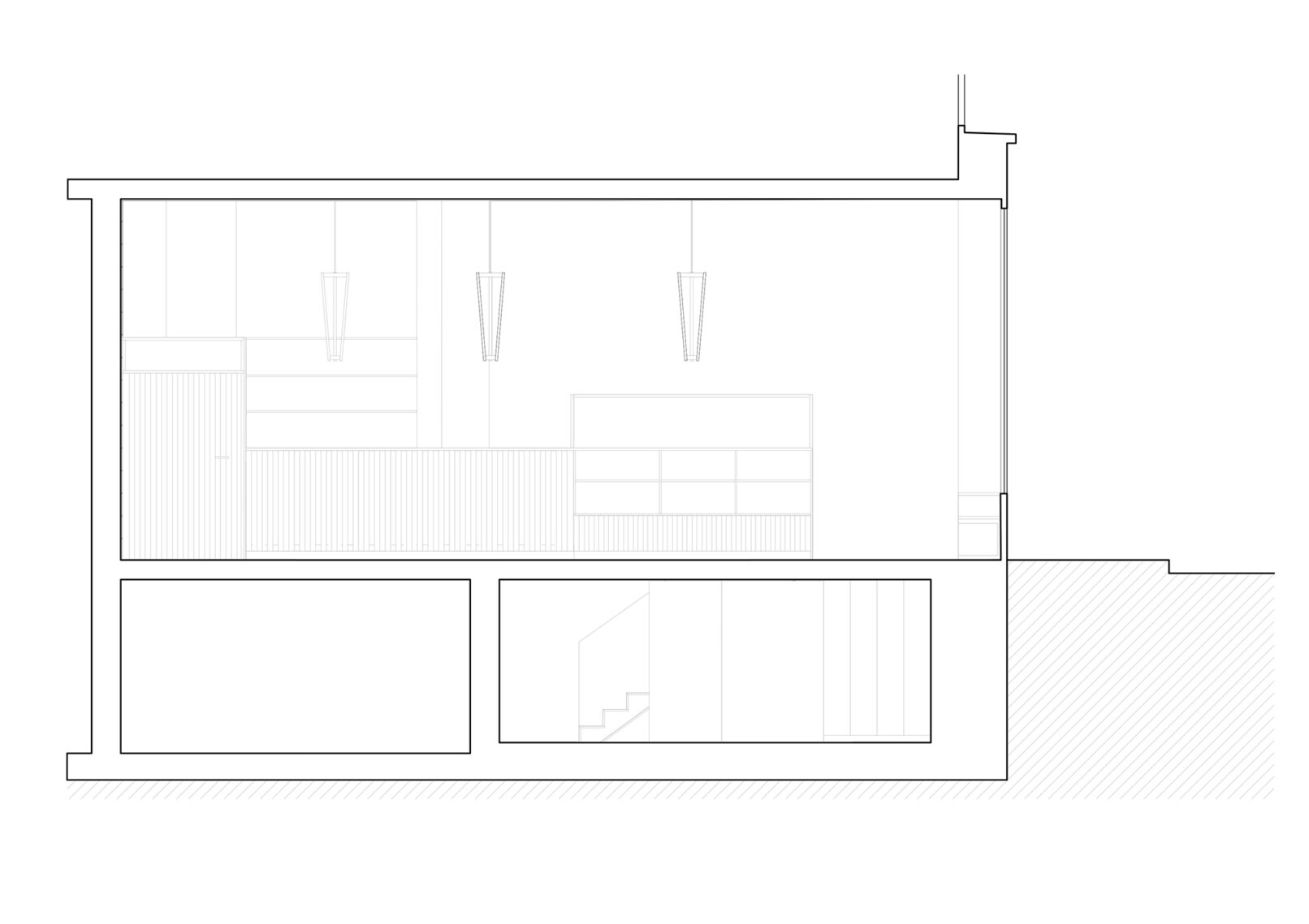
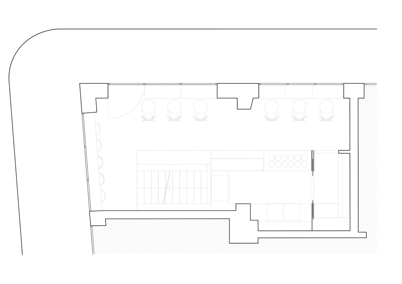
Un projet de réaménagement d’une arcade dans un bâtiment classé du dix-huitième siècle.  L’idée du projet part d’une mise en valeur de l’hauteur volume existant par des grandes baies vitrées et une mise à nu de la structure de piliers en pierre. Le but est de trouver un espace intemporel, un café ou en se posant on perd la notion du temps, on a l’impression qu’il a toujours été là. L’espace de départ en étant étroit et long,  nous proposons l’introduction d’un volume compact sur la longueur qui résout le programme technique du café et les circulations en laissant le plus d’espace pour la zone d’assises. Ce volume est traité comme un monolithe sculptural avec un rendu uni en MDF teinté dans la masse vert qui flotte sur un sol en béton apparent. Des contrastes en noyer marquent une zone de collaborateurs et le nouveau bloc d’escalier. Un plan de travail en marbre poli renforce l’horizontalité du bar. Des grands luminaires suspendus mettent en valeur la verticalité de l’espace pour gagner en amplitude visuelle.